

Appartement 2 pièce(s) 1 chambre(s) 41.04 m²
Antony (92160)A propos de ce bien
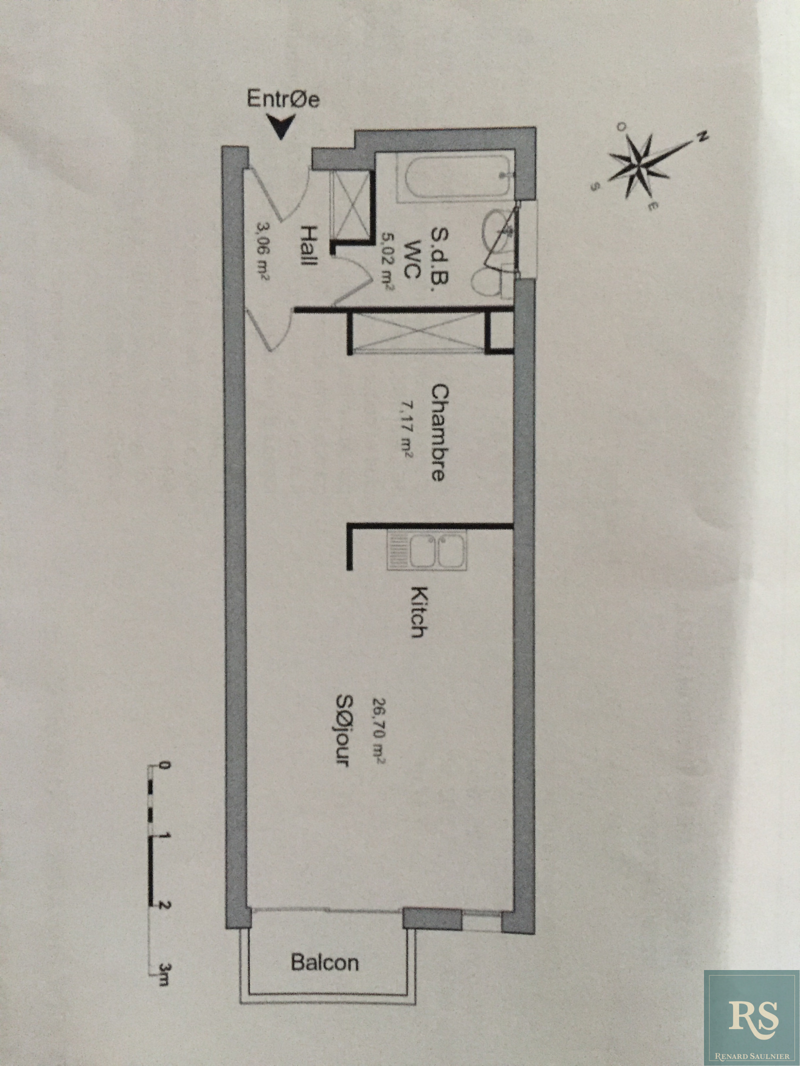
EXCLUSIVITE : ANTONY CENTRE APPARTEMENT LUMINEUX DE 2 PIECES 41 M² DANS COPROPRIETE DE 1996, COMPRENANT :
enrée avec placard, grande salle de bains avec toilettes, coin chambre avec placard, séjour avec kitchenette aménagée neuve, le tout ouvrant sur balcon exposé Est.
Une cave et un emplacement de parking en sous-sol.
Chauffage électrique - RER B Antony à 9 mn à pied.
Copropriété de 84 lots - charges courantes 124 € / mois - Prix : 262.500 € dont honoraires 5% à la charge de l'acquéreur.
Diagnostics RAS - Montant estimé des dépenses annuelles d'énergie pour un usage standard entre 580 € et 820 € suivant DPE du 30/12/21.
Caractéristiques de ce bien
- Surface 41,04 m²
- carrez 41,04 m²
- séjour 20,79 m²
- 1 chambre(s)
- 1 salle(s) de bain
- construit en 1996
- kitchenette (semi-équipée)
- Chauffage individuel : convecteur (electrique)
- exposition Est
- 2ème étage
- 4 étage(s)
- ascenseur
- cave
- balcon
Diagnostics énergétiques
Montant estimé des dépenses annuelles d'énergie de ce logement pour un usage standard est compris entre 580 € et 820 € . 2021 étant l'année de référence des prix de l'énergie utilisés pour établir cette estimation.
Diagnostics énergétiques
Montant estimé des dépenses annuelles d'énergie de ce logement pour un usage standard est compris entre 580 € et 820 € . 2021 étant l'année de référence des prix de l'énergie utilisés pour établir cette estimation.
Informations financières
Informations de copropriété
Autour du bien
-
Commerces et santé
-
Loisirs
-
Ecoles
-
Transports
-
Pratique